Trilocale in vendita

Torino, Corso grosseto - Borgata Vittoria
€ 125.000
3 locali 3 locali
90 Mq 90 Mq
1 bagno 1 bagno

Trilocale in vendita

Torino, Corso grosseto - Borgata Vittoria

Descrizione annuncio

Complesso con giardino condominiale e posto auto di proprietà in Corso Grosseto nelle vicinanze della chiesa Cafasso.

Contesto tranquillo e ben servito, proponiamo in vendita un luminoso trilocale ristrutturato, situato al primo piano di una palazzina anni ’50 di soli quattro piani.

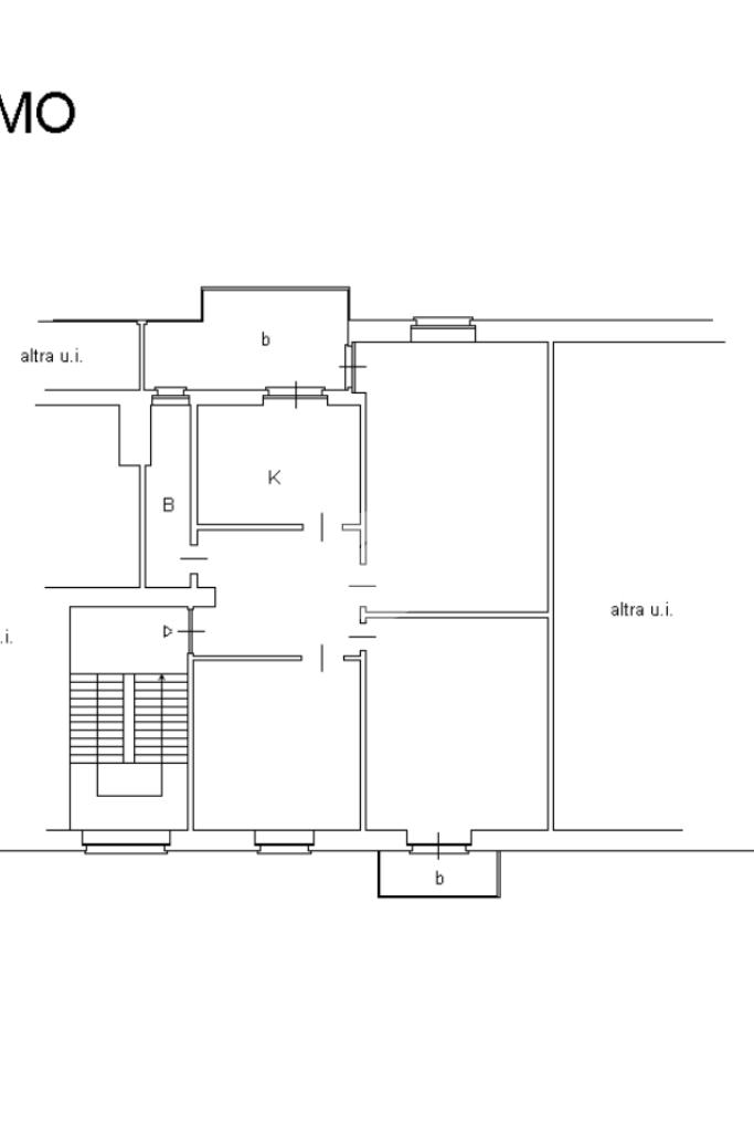
L'immobile è composto da un ingresso che ci conduce all'ampia zona giorno con cucina a vista ed uscita sul primo ampio balcone. La sala, dotata di condizionatore freddo/caldo, spaziosa può ospitare un tavolo da soggiorno, le sedie e un comodo divano angolare; è caratterizzata inoltre da una finestra così da rendere l'ambiente ancora più luminoso.

La camera matrimoniale è ben squadrata ed ha l'uscita sul secondo balcone.

La seconda camera ha invece la finestra.

Il bagno, completo di tutti i sanitari, ha il doppio lavabo, il box doccia e la finestra.

Gli infissi esterni sono in PVC con vetro doppio con apertura in Vasistas.

Il riscaldamento è centralizzato con le termo valvole e l’esposizione è doppia.

Completa la proprietà un ripostiglio, una cantina e un posto auto assegnato all’interno del cortile condominiale.

L’immobile si trova in una zona ben collegata con i principali servizi, attività commerciali e mezzi pubblici, ideale per famiglie, coppie o professionisti alla ricerca di una soluzione abitativa funzionale e ben servita.

Un’opportunità da cogliere per vivere in un quartiere residenziale ricco di comfort!

Mostra tutto

Nelle vicinanze

Trasporto pubblico Trasporto pubblico
stazione di Torino Rebaudengo Fossata
stazione di Torino Rebaudengo Fossata
800 m
Madonna di Campagna
Madonna di Campagna
1,3 Km
Largo Grosseto Nord
Largo Grosseto Nord
1,4 Km
Madonna di Campagna Satti
Madonna di Campagna Satti
1,4 Km
Chiesa Salute
Chiesa Salute
60 m
Ricariche auto elettriche Ricariche auto elettriche
Bluetorino Stradella
1,1 Km
Edit Torino
1,6 Km
Bluetorino Piazza Derna
1,6 Km
Lidl Altessano
2,7 Km
LIDL Torino Via Bologna
2,8 Km
Scuole Scuole
Istituto di Istruzione Superiore Romolo Zerboni
150 m
Scuola Paritaria SAN Giuseppe Cafasso
260 m
Scuola media Umberto Saba
550 m
Palestra della Don Murialdo
710 m
La Nidiata
730 m
Farmacia Farmacia
Farmacia Santa Elisabetta
230 m
Chierici SNC
320 m
San Rocco dottor Arese Gianpiero
370 m
Farmacia Prof. Cavanna S.N.C.
450 m
Farmacia Breglio
720 m
Ospedali Ospedali
Ospedale San Giovanni Bosco
1,9 Km
Amedeo di Savoia
2,4 Km
Ospedale Amedeo di Savoia
2,4 Km
Supermercati Supermercati
Penny market
590 m
Carrefour Market
1,1 Km
Lidl
1,2 Km
Pittarello
1,4 Km
Supermercati
1,4 Km
Negozi Negozi
Negozi
1,1 Km
Focacceria La Trinacria
1,4 Km
Panificio Voglia di pane
1,5 Km
Sapori del Palato
1,6 Km
Facit
1,6 Km
Bar Bar
Spazio 211
950 m
Supermarket
1,1 Km
Bar
1,1 Km
The World
1,2 Km
Bar Cappuccino Night
1,3 Km
Ristoranti Ristoranti
Grande Bambù
720 m
Mangiaebevi
890 m
Bar degli Archi
940 m
Sa Crocoriga
940 m
Moderno
1,0 Km
Mostra tutto

Caratteristiche

Rif.:
61091655
Piano:
1 di 4 (Piano basso)
Posti auto:
1
Balconi:
2
Camere da letto:
2
Arredamento:
Parziale
Mostra tutto
Prezzo Prezzo
€ 125.000
Rata mutuo Rata mutuo
€ 590 / mese
Proponi il tuo prezzoProponi il tuo prezzo

Classe Energetica

B
B
B
B
B
B
B
B
B
EP globale non rinnovabile:
98.01 kW h/m² anno
EP invernale del fabbricato:
EP estiva del fabbricato:
Anno di costruzione:
1950
Riscaldamento:
Centralizzato
Tipo impianto:
A radiatori
Tipo alimentazione:
Metano

Ti interessa visionare l'immobile?

Fissa un appuntamento  Fissa un appuntamento

Richiedi informazioni

Clicca su Leggi per aprire l'informativa
* Questi campi sono obbligatori

Calcola il tuo mutuo

Semplice e senza impegno
Anticipo

( % )
Mutuo

( % )

pochi semplici passi

inserisci i tuoi dati
Questionario completato
Grazie per aver richiesto un appuntamento senza impegno con un nostro Consulente del Credito e Assicurativo.

Hai inserito correttamente tutti i dati necessari e a breve riceverai una e-mail con un link da convalidare per inviare i tuoi dati.
Affiliato
Studio Breglio Sas
Corso Grosseto, 248/C 10148 Torino (TO)

Il nostro staff


  • Riccardo Luigi Milan
    Affiliato

  • Luca Palomba
    Collaboratore

  • Maurizio Iraci
    Responsabile

  • Ilaria Sampognaro
    Collaboratrice
Corso Grosseto, 248/C 10148 Torino (TO)
Zona: Borgo Vittoria-Via Stampini-Metro-Rebaudengo
Mostra su mappa
Orari: dal lunedì al venerdì 9.00 -12.30 e 15.00-20.00, sabato chiusura 18.00, domenica chiuso
Affiliato
Studio Breglio Sas
Corso Grosseto, 248/C 10148 Torino (TO)

2025 Tecnocasa Franchising S.p.A. - P. IVA 08365160152 - Via Monte Bianco 60/A 20089 Rozzano (MI). Ogni agenzia ha un proprio titolare ed è autonoma. Privacy policy | Policy utilizzo | Cookie policy