Trilocale in vendita

Torino, Via paolo veronese - Borgata Vittoria
€ 199.000
3 locali 3 locali
89 Mq 89 Mq
1 bagno 1 bagno

Trilocale in vendita

Torino, Via paolo veronese - Borgata Vittoria

Descrizione annuncio

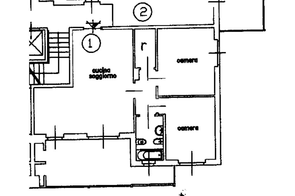
Proponiamo in vendita un luminoso appartamento trilocale, completamente ristrutturato e arredato con gusto, situato al primo piano di uno stabile servito da ascensore e privo di barriere architettoniche.

L’immobile si apre su un ingresso living che conduce alla spaziosa zona giorno con cucina, resa luminosa dalla porta finestra che dà accesso al grande terrazzo vivibile, perfetto per momenti di relax all’aperto. Il terrazzo è attrezzato con tende estive e invernali e dispone di un comodo ripostiglio esterno.

Cucina, bagno, lavanderia e le piastrelle del terrazzo sono stati ristrutturati circa 5 anni fa, garantendo ambienti moderni e funzionali.

La zona notte è ben separata e composta da:

Camera da letto matrimoniale con ampia finestra; Cameretta, anch’essa con finestra; Bagno finestrato, dotato di moderno box doccia.

L'appartamento è dotato di riscaldamento autonomo e viene venduto completo di arredi, pronti all’uso.

Incluso nel prezzo un box auto doppio di ca 40 mq, perfetto anche come spazio aggiuntivo per bici, moto o scaffalature.

Ottima posizione: nelle immediate vicinanze si trova l’ingresso del raccordo autostradale Torino-Caselle, che garantisce spostamenti rapidi e agevoli.
A breve distanza sono presenti anche:

la stazione Rebaudengo Fossata, collegata con il centro città e le principali linee ferroviarie; supermercati, negozi, scuole e servizi di ogni tipo.

Mostra tutto

Nelle vicinanze

Trasporto pubblico Trasporto pubblico
stazione di Torino Rebaudengo Fossata
stazione di Torino Rebaudengo Fossata
710 m
Torino Dora GTT
Torino Dora GTT
1,9 Km
Derna
Derna
890 m
Oxilia
Oxilia
920 m
Scialoja Capolinea
Scialoja Capolinea
240 m
Ricariche auto elettriche Ricariche auto elettriche
Bluetorino Piazza Derna
930 m
Edit Torino
1,6 Km
Bluetorino Stradella
1,8 Km
LIDL Torino Via Bologna
2,5 Km
Scuole Scuole
Scuola Paritaria SAN Giuseppe Cafasso
510 m
Scuole
540 m
Scuola elementare Anna Frank
710 m
Direzione Didattica "Albert Sabin"
750 m
Scuola Primaria "Erich Giachino"
780 m
Farmacia Farmacia
Farmacia Santi Angeli Custodi S.N.C.
520 m
Farmacia Santa Elisabetta
530 m
Comunale 12 - Afc
660 m
Porpora SNC
780 m
Chierici SNC
800 m
Ospedali Ospedali
Ospedale San Giovanni Bosco
1,3 Km
Ospedale Amedeo di Savoia
3,0 Km
Amedeo di Savoia
3,0 Km
Supermercati Supermercati
Lidl
1,0 Km
iN's
1,1 Km
Superstore Coop Botticelli
1,3 Km
Penny market
1,4 Km
In's
1,5 Km
Negozi Negozi
Focacceria La Trinacria
1,3 Km
Maa Alimentari
1,3 Km
Panificio Voglia di pane
1,3 Km
Facit
1,7 Km
Negozi
1,8 Km
Bar Bar
The World
460 m
Bar Cappuccino Night
570 m
Spazio 211
820 m
Degusto
930 m
Happy Bar
1,5 Km
Ristoranti Ristoranti
Nuovo Jubin
660 m
Tourlé
860 m
Mr Ang
930 m
Il nuovo biellese
1,0 Km
Pizzeria da Fischetto
1,1 Km
Mostra tutto

Caratteristiche

Rif.:
61111354
Piano:
1 di 6 con ascensore (Piano basso)
Box:
1
Terrazzi:
1
Camere da letto:
2
Arredamento:
Completo
Mostra tutto
Prezzo Prezzo
€ 199.000
Rata mutuo Rata mutuo
€ 938 / mese
Proponi il tuo prezzoProponi il tuo prezzo

Classe Energetica

D
D
D
D
D
D
D
D
D
EP globale non rinnovabile:
0.00 kW h/m² anno
EP globale rinnovabile:
154.33 kW h/m² anno
EP invernale del fabbricato:
EP estiva del fabbricato:
Anno di costruzione:
2003
Riscaldamento:
Autonomo
Tipo impianto:
A radiatori
Tipo alimentazione:
Metano

Ti interessa visionare l'immobile?

Fissa un appuntamento  Fissa un appuntamento

Richiedi informazioni

Clicca su Leggi per aprire l'informativa
* Questi campi sono obbligatori

Calcola il tuo mutuo

Semplice e senza impegno
Anticipo

( % )
Mutuo

( % )

pochi semplici passi

inserisci i tuoi dati
Questionario completato
Grazie per aver richiesto un appuntamento senza impegno con un nostro Consulente del Credito e Assicurativo.

Hai inserito correttamente tutti i dati necessari e a breve riceverai una e-mail con un link da convalidare per inviare i tuoi dati.
Affiliato
Studio Breglio Sas
Corso Grosseto, 248/C 10148 Torino (TO)

Il nostro staff


  • Riccardo Luigi Milan
    Affiliato

  • Luca Palomba
    Collaboratore

  • Maurizio Iraci
    Responsabile

  • Ilaria Sampognaro
    Collaboratrice
Corso Grosseto, 248/C 10148 Torino (TO)
Zona: Borgo Vittoria-Via Stampini-Metro-Rebaudengo
Mostra su mappa
Orari: dal lunedì al venerdì 9.00 -12.30 e 15.00-20.00, sabato chiusura 18.00, domenica chiuso
Affiliato
Studio Breglio Sas
Corso Grosseto, 248/C 10148 Torino (TO)

2025 Tecnocasa Franchising S.p.A. - P. IVA 08365160152 - Via Monte Bianco 60/A 20089 Rozzano (MI). Ogni agenzia ha un proprio titolare ed è autonoma. Privacy policy | Policy utilizzo | Cookie policy