Bilocale in vendita

Torino, Via giuseppe massari - Borgata Vittoria
€ 119.000
2 locali 2 locali
62 Mq 62 Mq
1 bagno 1 bagno

Bilocale in vendita

Torino, Via giuseppe massari - Borgata Vittoria

Descrizione annuncio

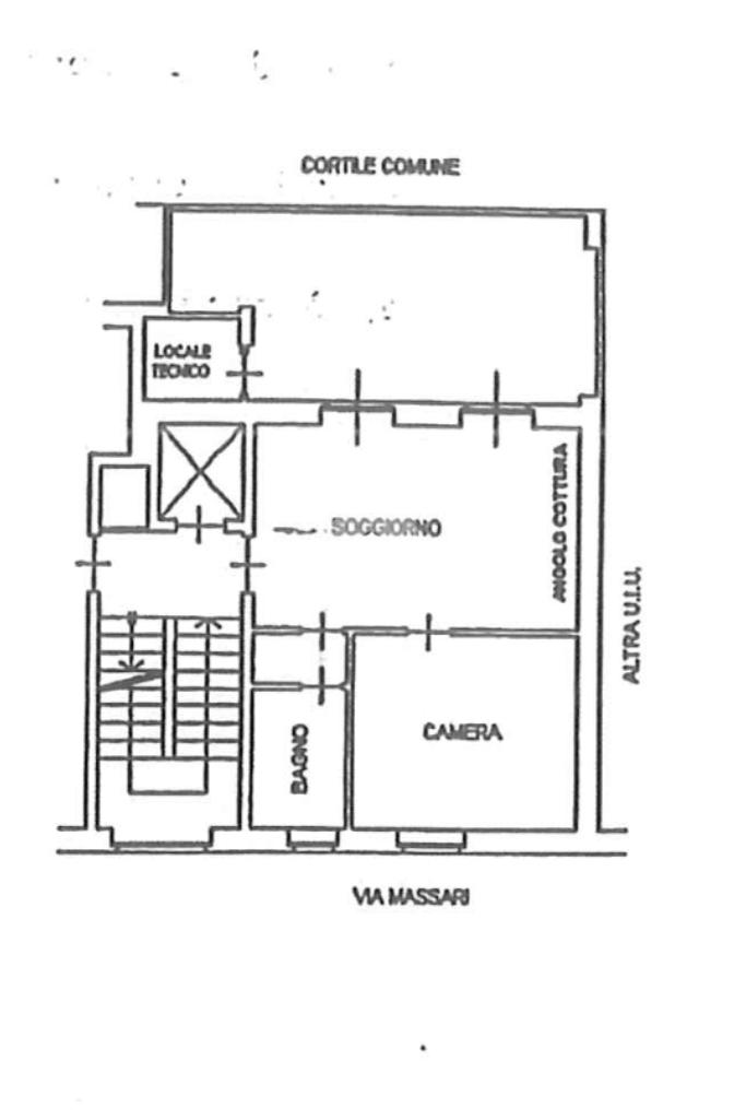
Bilocale con splendido terrazzo di 40 mq – Borgo Vittoria

In zona Borgo Vittoria, in contesto tranquillo e riservato, proponiamo in vendita elegante bilocale situato in stabile di recente costruzione, curato nelle parti comuni e privo di barriere architettoniche.

L’appartamento si presenta in ottime condizioni interne, pronto da abitare, con ambienti ben distribuiti e luminosi.

L’ingresso si apre su un accogliente soggiorno living con angolo cottura, spazio moderno e funzionale che si affaccia direttamente sul vero punto di forza dell’immobile: uno splendido terrazzo di circa 40 mq, ideale per pranzi e cene all’aperto, momenti di relax o per chi desidera uno sfogo esterno vivibile tutto l’anno.

La zona notte è composta da una spaziosa camera matrimoniale finestrata, caratterizzata da ottima luminosità e comfort.Il bagno, anch’esso finestrato, è dotato di box doccia ed è rifinito con gusto e funzionalità, garantendo praticità e benessere quotidiano. Completa la proprietà una comoda cantina.

Soluzione ideale per giovani coppie, single o anche come investimento, grazie alla posizione strategica e alla qualità dello stabile. Zona ben servita ma lontana dal traffico, perfetta per chi cerca tranquillità senza rinunciare ai servizi.Un’opportunità da non perdere. Contattaci per maggiori informazioni o per fissare una visita.

Mostra tutto

Nelle vicinanze

Trasporto pubblico Trasporto pubblico
stazione di Torino Rebaudengo Fossata
stazione di Torino Rebaudengo Fossata
1,1 Km
Madonna di Campagna
Madonna di Campagna
1,2 Km
Largo Grosseto Nord
Largo Grosseto Nord
1,2 Km
Madonna di Campagna Satti
Madonna di Campagna Satti
1,3 Km
Fea
Fea
90 m
Ricariche auto elettriche Ricariche auto elettriche
Bluetorino Stradella
1,0 Km
Edit Torino
1,8 Km
Bluetorino Piazza Derna
1,9 Km
Lidl Altessano
2,5 Km
Scuole Scuole
Istituto di Istruzione Superiore Romolo Zerboni
190 m
Scuola Paritaria SAN Giuseppe Cafasso
460 m
La Nidiata
700 m
Scuola media Umberto Saba
740 m
Palestra della Don Murialdo
770 m
Farmacia Farmacia
San Rocco dottor Arese Gianpiero
320 m
Farmacia Santa Elisabetta
500 m
Chierici SNC
600 m
Farmacia Prof. Cavanna S.N.C.
630 m
Corso Grosseto
680 m
Ospedali Ospedali
Ospedale San Giovanni Bosco
2,1 Km
Amedeo di Savoia
2,4 Km
Ospedale Amedeo di Savoia
2,5 Km
Supermercati Supermercati
Penny market
470 m
Carrefour Market
1,0 Km
Supermercati
1,3 Km
Lidl
1,5 Km
Pittarello
1,5 Km
Negozi Negozi
Negozi
1,1 Km
Sapori del Palato
1,6 Km
Focacceria La Trinacria
1,7 Km
Panificio Voglia di pane
1,8 Km
Facit
1,9 Km
Bar Bar
Supermarket
1,0 Km
Bar
1,3 Km
Spazio 211
1,3 Km
The World
1,4 Km
Bar Cappuccino Night
1,5 Km
Ristoranti Ristoranti
Mangiaebevi
600 m
Grande Bambù
740 m
Bar degli Archi
910 m
Moderno
1,0 Km
Sa Crocoriga
1,0 Km
Mostra tutto

Caratteristiche

Rif.:
61184246
Piano:
1 di 5 con ascensore (Piano basso)
Terrazzi:
1
Camere da letto:
1
Arredamento:
Assente
Condizionamento:
Assente
Mostra tutto
Prezzo Prezzo
€ 119.000
Rata mutuo Rata mutuo
€ 561 / mese
Spese annue Spese annue
€ 2.000
Proponi il tuo prezzoProponi il tuo prezzo

Classe Energetica

B
B
B
B
B
B
B
B
B
EP globale non rinnovabile:
96.40 kW h/m² anno
EP globale rinnovabile:
8.12 kW h/m² anno
EP invernale del fabbricato:
EP estiva del fabbricato:
Anno di costruzione:
2010
Riscaldamento:
Centralizzato
Tipo impianto:
A radiatori
Tipo alimentazione:
Metano

Ti interessa visionare l'immobile?

Fissa un appuntamento  Fissa un appuntamento

Richiedi informazioni

Clicca su Leggi per aprire l'informativa
* Questi campi sono obbligatori

Calcola il tuo mutuo

Semplice e senza impegno
Anticipo

( % )
Mutuo

( % )

pochi semplici passi

inserisci i tuoi dati
Questionario completato
Grazie per aver richiesto un appuntamento senza impegno con un nostro Consulente del Credito e Assicurativo.

Hai inserito correttamente tutti i dati necessari e a breve riceverai una e-mail con un link da convalidare per inviare i tuoi dati.
Affiliato
Immobiliare Grosseto Sas
Corso Grosseto, 248/C 10148 Torino (TO)

Il nostro staff


  • Chiara De Luca
    Coordinatrice

  • Riccardo Luigi Milan
    Responsabile

  • Luca Palomba
    Collaboratore

  • Maurizio Iraci
    Affiliato
Corso Grosseto, 248/C 10148 Torino (TO)
Zona: Borgo Vittoria-Via Stampini-Metro-Rebaudengo
Mostra su mappa
Orari: dal lunedì al venerdì 9.00 -12.30 e 15.00-20.00, sabato 9.00-12.30 e poemriggio su appuntamento, domenica chiuso
Affiliato
Immobiliare Grosseto Sas
Corso Grosseto, 248/C 10148 Torino (TO)

2026 Tecnocasa Franchising S.p.A. - P. IVA 08365160152 - Via Monte Bianco 60/A 20089 Rozzano (MI). Ogni agenzia ha un proprio titolare ed è autonoma. Privacy policy | Policy utilizzo | Cookie policy