Trilocale in vendita

Torino, Via orbetello - Borgata Vittoria
€ 119.000
3 locali 3 locali
80 Mq 80 Mq
1 bagno 1 bagno

Trilocale in vendita

Torino, Via orbetello - Borgata Vittoria

Descrizione annuncio

.

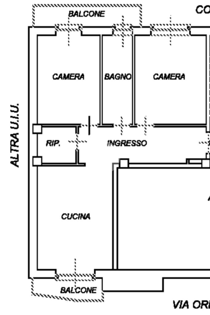
Nel cuore del quartiere Borgo Vittoria, in uno stabile ben abitato e curato nelle parti comuni, proponiamo in vendita trilocale ristrutturato, ideale per chi cerca comfort e funzionalità in una zona ben servita.

L’appartamento si trova al secondo piano senza ascensore ed è stato oggetto di ristrutturazione, presentandosi in ottime condizioni interne. L’ingresso si apre su una luminosa zona giorno, con cucina abitabile ben organizzata e accogliente.

La zona notte è composta da due camere da letto ampie e ben sfruttabili, perfette sia per una famiglia sia per chi desidera uno spazio aggiuntivo per studio o smart working. Completa la disposizione interna una comoda lavanderia e un bagno finestrato dotato di box doccia.

L’immobile gode di doppia esposizione, che garantisce un’ottima luminosità durante tutta la giornata, oltre alla presenza di due balconi. Per il massimo comfort sono presenti tre condizionatori, mentre il riscaldamento è centralizzato.

A completare la proprietà troviamo una cantina di pertinenza, utile come spazio di deposito.

La posizione è particolarmente strategica: l’immobile si trova comodo a tutti i principali servizi, negozi e mezzi pubblici, oltre ad essere vicino alla stazione ferroviaria di Corso Grosseto, elemento che rende la soluzione interessante anche per chi necessita di spostamenti rapidi.

Soluzione ideale per famiglie, giovani coppie o come investimento.

Mostra tutto

Nelle vicinanze

Trasporto pubblico Trasporto pubblico
Madonna di Campagna
Madonna di Campagna
330 m
Torino Rigola - Stadio
Torino Rigola - Stadio
1,8 Km
Largo Grosseto Nord
Largo Grosseto Nord
130 m
Massari
Massari
240 m
Orbetello
Orbetello
80 m
Ricariche auto elettriche Ricariche auto elettriche
Bluetorino Stradella
800 m
Lidl Altessano
1,5 Km
Edit Torino
2,4 Km
Bluetorino Piazza Derna
2,9 Km
Scuole Scuole
Scuola Media Statale Ignazio Vian
270 m
I.T.T.S. Carlo Grassi
480 m
Scuole
580 m
Scuola elementare Gino Capponi
580 m
La Nidiata
780 m
Farmacia Farmacia
Madonna
140 m
Del Mercato
300 m
Corso Grosseto
500 m
Santa Chiara
540 m
Farmacia San Fabio
600 m
Ospedali Ospedali
Amedeo di Savoia
2,0 Km
Ospedale Amedeo di Savoia
2,1 Km
Ospedale Maria Vittoria
2,8 Km
Supermercati Supermercati
Supermercati
380 m
Carrefour Market
690 m
Penny market
730 m
Carrefour
990 m
Prestofresco
1,3 Km
Negozi Negozi
Negozi
900 m
Sapori del Palato
1,3 Km
El Pan d'na Volta
1,5 Km
RisparmioCasa
1,5 Km
Future Fashion
1,8 Km
Bar Bar
Supermarket
590 m
Vinosteria da Celestino
1,4 Km
Bar
1,5 Km
Bar Tabacchi
1,6 Km
Bar
2,0 Km
Ristoranti Ristoranti
Millefiori
510 m
Linopassamilvino
530 m
La Paella
580 m
Mangiaebevi
650 m
Bar degli Archi
750 m
Mostra tutto

Caratteristiche

Rif.:
61189081
Piano:
2 di 5 (Piano medio)
Balconi:
2
Camere da letto:
2
Arredamento:
Assente
Condizionamento:
Predisposizione impianto
Mostra tutto
Prezzo Prezzo
€ 119.000
Rata mutuo Rata mutuo
€ 561 / mese
Spese annue Spese annue
€ 2.000
Proponi il tuo prezzoProponi il tuo prezzo

Classe Energetica

D
D
D
D
D
D
D
D
D
EP invernale del fabbricato:
EP estiva del fabbricato:
Anno di costruzione:
1960
Riscaldamento:
Centralizzato
Tipo impianto:
A radiatori
Tipo alimentazione:
Metano

Ti interessa visionare l'immobile?

Fissa un appuntamento  Fissa un appuntamento

Richiedi informazioni

Clicca su Leggi per aprire l'informativa
* Questi campi sono obbligatori

Calcola il tuo mutuo

Semplice e senza impegno
Anticipo

( % )
Mutuo

( % )

pochi semplici passi

inserisci i tuoi dati
Questionario completato
Grazie per aver richiesto un appuntamento senza impegno con un nostro Consulente del Credito e Assicurativo.

Hai inserito correttamente tutti i dati necessari e a breve riceverai una e-mail con un link da convalidare per inviare i tuoi dati.
Affiliato
Immobiliare Grosseto Sas
Corso Grosseto, 248/C 10148 Torino (TO)

Il nostro staff


  • Chiara De Luca
    Coordinatrice

  • Riccardo Luigi Milan
    Responsabile

  • Luca Palomba
    Collaboratore

  • Maurizio Iraci
    Affiliato
Corso Grosseto, 248/C 10148 Torino (TO)
Zona: Borgo Vittoria-Via Stampini-Metro-Rebaudengo
Mostra su mappa
Orari: dal lunedì al venerdì 9.00 -12.30 e 15.00-20.00, sabato 9.00-12.30 e poemriggio su appuntamento, domenica chiuso
Affiliato
Immobiliare Grosseto Sas
Corso Grosseto, 248/C 10148 Torino (TO)

2026 Tecnocasa Franchising S.p.A. - P. IVA 08365160152 - Via Monte Bianco 60/A 20089 Rozzano (MI). Ogni agenzia ha un proprio titolare ed è autonoma. Privacy policy | Policy utilizzo | Cookie policy